Al 23 jaar de grootste gratis online marktplaats!
Berichten
Account
+
Plaats zoekertje
Alle rubrieken
Agrarisch
Antiek en Kunst
Audio, TV en Foto
Auto's
Auto-onderdelen
Auto diversen
Boeken
Beauty en Gezondheid
Bedrijfspanden
Caravans en Kamperen
Cd's en Dvd's
Computers en Software
Contacten en Berichten
Diensten en Vakmensen
Dieren en Toebehoren
Doe-het-zelf en Verbouw
Erotiek
Erotieklijnen
Fietsen en Brommers
Hobby en Vrije tijd
Huis en Inrichting
Huizen en Kamers
Kinderen en Baby's
Kleding | Dames
Kleding | Heren
Motoren
Muziek en Instrumenten
Paranormaal
Postzegels en Munten
Sieraden, Tassen en Uiterlijk
Spelcomputers, Games
Sport en Fitness
Telecommunicatie
Tickets en Kaartjes
Tuin en Terras
Vacatures
Vakantie
Verzamelen
Watersport en Boten
Witgoed en Apparatuur
Zakelijke goederen
Diversen
Alle regio's
Brussel
West-Vlaanderen
Oost-Vlaanderen
Antwerpen
Vlaams-Limburg
Vlaams-Brabant
Waals-Brabant
Henegouwen
Namen
Luik
Luxemburg
Zoeken
Rubrieken
Huizen en Kamers
Te Koop
Appartementen en Flats
Bedrijfspanden
Bestaand Benelux
Bestaand Buiten Europa
Bestaand Europa
Eengezinswoningen
Garageboxen
Grondkavels
Half vrijstaand
Hoekwoningen
Kangoeroewoning
Kantoorruimte
Kavels Benelux
Kavels Buiten Europa
Kavels Europa
Kluswoningen
Landhuizen
Nieuw Benelux
Nieuw Buiten Europa
Nieuw Europa
Parkeerplaatsen
Recreatiewoningen
Starterswoningen
Studio's
Tussenwoningen
Vrijstaand
Woonboerderij
Te Huur
Appartementen en Flat's
Bedrijfspanden
Eengezinswoningen
Hoekwoningen
Kamers
Kantoorruimte
Starterswoningen
Studentenhuisvesting
Tussenwoningen
Twee onder een kap
Vrijstaand
Woningruil naar groter
Woningruil naar kleiner
Woningruil overig
Diensten | Koop
Hypotheekadviseurs
Interieuradviseurs
Makelaars
Overige | Te Huur
Recreatiewoningen
Woongemeenschap
Overige | Te Huur
Overige | Te Koop
Bouw projecten
Woonboten
Overige | Te Koop
Rubrieken
Rubrieken
×
Home
-
Huizen en Kamers
-
Overige | Te Huur
- Appartement tt. Vasumweg in Amsterdam
Je link hier plaatsen
Appartement tt. Vasumweg in Amsterdam
sinds
13-10-2025 18:48:02
Kopieer link
prijs: € 1495
Locatie
:
Brussel
(Brussel)
Website
:
Bezoek website
Kenmerken
Beschrijving
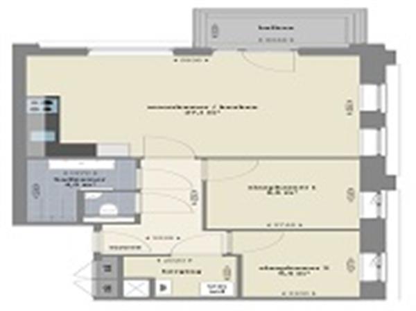
Gelegen in Amsterdam ligt dit appartement met 3 kamers aan de tt. Vasumweg. Het appartement heeft een bijzonder prettige uitstraling en een woonoppervlakte van 59m2.
Heerlijk wonen in Amsterdam, dat kan goed op deze locatie.
Openbare voorzieningen zoals scholen, supermarkten en openbaar vervoer zijn goed bereikbaar. De buurt heeft naar verhouding relatief veel jonge inwoners. Verder is het een redelijk rustige buurt.
*Deze tekst is samengesteld op basis van openbare kenmerken van de woning aan de tt. Vasumweg in Amsterdam.
Meer informatie over deze woning? Klik op Bekijk woning om contact met de verhuurder te leggen. U wordt doorverwezen naar een externe bron.
Kenmerken: Kopen in Brussel
Klik hier en bezoek de website voor meer informatie
Zoekertjenummer: 120031333
Meld aan Aanbod