Appartement Statenlaan in Rotterdam


sinds 18-3-2026 18:54:07


prijs: € 1625
Locatie : Nijmegen  (Gelderland)
Website : Bezoek website

Kenmerken

Beschrijving

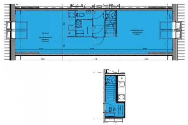
Indeling:
Begane grond:
Centrale entree. Vervolgens ontvangst hal met toegang tot de parkeergarage en fietsenstalling. Hier zit ook de trap en lift naar de etages.
1e etage
Trapopgang met toegang tot het appartement.
2e etage
Hal met toegang tot toilet. Bergkast met plaats voor wasmachine en droger. Toegang tot de woonkamer met aan de voorzijde een zitkamer en aan de achterzijde een ruime woonkeuken. De moderne keuken is voorzien van verschillende inbouw apparatuur; afzuigkap, inductie kookplaat, combi oven-magnetron, vaatwasser en koelkast. Aan zowel de voor- en achterzijde zijn balkon dakramen geïnstalleerd welke een buitengevoel geven.
3e etage
Overloop met toegang tot de badkamer welke beschikt over een 2e toilet, inloop douche, dubbele wastafel en design radiator. Toegang tot de 1e slaapkamer kamer van ca. 11 m² (deze is niet afsluitbaar) aan de voorzijde. Hoofdslaapkamer aan de achterzijde van ca. 10 m².
4e etage
Vide slaapkamer van ca. 7m², deze kamer staat in open verbinding met de beneden ruimte.
Kenmerken: Kopen in Nijmegen



Klik hier en bezoek de website voor meer informatie
Zoekertjenummer: 120401107 Meld aan Aanbod