Appartement Robijnring in Eindhoven


sinds 30-3-2026 18:49:44


prijs: € 1850
Locatie : Nijmegen  (Gelderland)
Website : Bezoek website

Kenmerken

Beschrijving

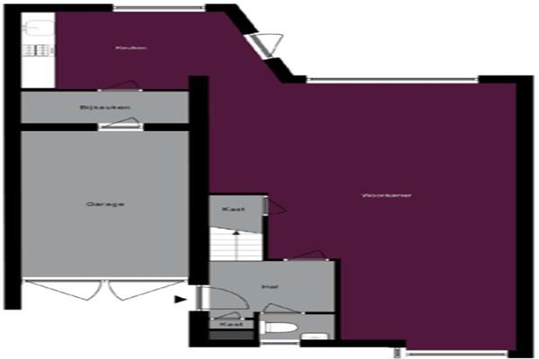
INDELING
Begane grond:
- Entree met trapopgang;
- Hal met voldoende ruimte voor garderobe;
- Deels betegelde toiletruimte met toilet en fonteintje;
- Woonkamer met toegang tot de tuin
- Nette keuken voorzien van diverse inbouwapparatuur waaronder koel-/vriescombinatie, combimagnetron, inductiekookplaat, afzuigkap en vaatwasser;
- Toegang tot garage.
Eerste verdieping:
- Overloop met trapopgang;
- Deels betegelde badkamer voorzien van inloopdouche, bad, toilet en wastafel;
- Slaapkamer 1 met toegang tot balkon;
- Slaapkamer 2;
- Slaapkamer 3;
Tweede verdieping:
- Ruime zolder
Kenmerken: Kopen in Nijmegen



Klik hier en bezoek de website voor meer informatie
Zoekertjenummer: 120444046 Meld aan Aanbod