Appartement Grote Gracht in Maastricht


sinds 8-4-2026 18:51:37


prijs: € 1400
Locatie : Nijmegen  (Gelderland)
Website : Bezoek website

Kenmerken

Beschrijving

Het appartement ligt direct om de hoek van het bruisende centrum van Maastricht.
Eerste verdieping:
Entree/hal met trappenhuis en vernieuwde meterkast (5 groepen, 2 aardlekschakelaars en slimme meter).
Tweede verdieping:
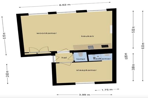
Entree/hal (ca. 2m2), gerenoveerde toiletruimte met zwevend toilet en fonteintje, ruime woonkamer met wandcloset, laminaatvloer, veel lichtinval, bluetooth bedienbare verlichting in woonkamer, grote raampartijen en een royale plafondhoogte van ca. 30cm. 3,6m met diverse ornamenten
De open keuken is voorzien van moderne RVS aanrechtbladcombinatie en voorzien van onder andere oven, spoelbak, 4-pits gaskookplaat, afzuigkap en koelkast. Keuken en woonkamer hebben een gezamenlijke oppervlakte van 34m2.
Verder bevindt zich aan de achterzijde van het appartement een royale slaapkamer (ca. 10,5m2), waar de cv-installatie is gesitueerd (Nefit Proline, 2017, eigendom), deze wordt gecombineerd met de badkamer voorzien van inloopdouche en wastafel.
Kenmerken: Kopen in Nijmegen



Klik hier en bezoek de website voor meer informatie
Zoekertjenummer: 120473144 Meld aan Aanbod