Appartement Gedempte Oude Gracht in Haarlem


sinds 20-3-2026 18:52:52


prijs: € 1750
Locatie : Nijmegen  (Gelderland)
Website : Bezoek website

Kenmerken

Beschrijving

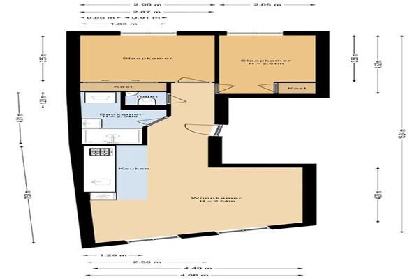
I N D E L I N G
Dit rijksmonumentale appartement bevindt zich op de eerste verdieping en is bereikbaar via een royale entree.
Hal, woonkeuken voorzien van airconditioning, badkamer met zeer ruime douche en ruimte voor was- en droogopstelling, apart toilet, grote slaapkamer met airconditioning en vaste kasten, en een kleinere slaapkamer eveneens met vaste kast. De nieuwe keuken is uitgerust met een Bora kookplaat met geïntegreerde afzuiging, vaatwasser en koelkast.
Het appartement is volledig zelfstandig met eigen voorzieningen, waaronder een eigen meterkast en een eigen internet- en televisieaansluiting. Daarnaast zijn er in iedere ruimte vaste data-aansluitingen aanwezig ten behoeve van thuiswerken.
Niet geschikt voor bewoning met kinderen
Kenmerken: Kopen in Nijmegen



Klik hier en bezoek de website voor meer informatie
Zoekertjenummer: 120408318 Meld aan Aanbod