Appartement Fregelaan in Amsterdam


sinds 19-3-2026 18:51:57


prijs: € 1547
Locatie : Nijmegen  (Gelderland)
Website : Bezoek website

Kenmerken

Beschrijving

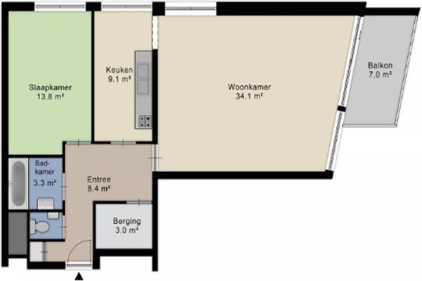
2-kamer appartement. Het appartement beschikt over een ruime woonkamer met half open keuken. De keuken is uitgerust met divers inbouwapparatuur. De badkamer is voorzien van een ligbad en/of separate douche, designradiator en wastafel. Praktisch is de inpandige berging welke is voorzien van een aansluiting voor jouw wasmachine en/of droger!
Kenmerken: Kopen in Nijmegen



Klik hier en bezoek de website voor meer informatie
Zoekertjenummer: 120404693 Meld aan Aanbod