Appartement Egelstraat in Eindhoven


sinds 30-3-2026 18:52:24


prijs: € 1475
Locatie : Nijmegen  (Gelderland)
Website : Bezoek website

Kenmerken

Beschrijving

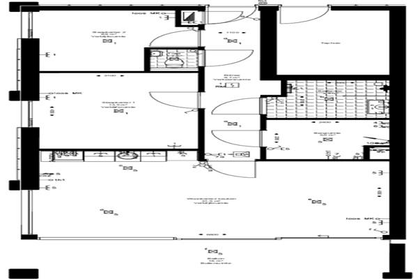
INDELING APPARTEMENT
Algemeen:
- Entree met bellentableau en brievenbussen;
- Trapopgang en lift naar verdiepingen.
Appartement (gelegen op de begane grond):
- Entree;
- Hal met voldoende ruimte voor een garderobe;
- Slaapkamer 1;
- Slaapkamer 2;
- (Deels) betegelde toiletruimte voorzien van zwevend toilet en fonteintje;
- (Deels) betegelde badkamer voorzien van inloopdouche met glazen douchewand en wastafel met spiegel;
- Technische ruimte voorzien van verwarmingsinstallatie, unit mechanische ventilatie en aansluitingen voor wasapparatuur;
- Woonkamer met open keuken voorzien van diverse inbouwapparatuur waaronder koelkast, vriezer, vaatwasser, inductiekookplaat en afzuigkap;
- Terras.
Kenmerken: Kopen in Nijmegen



Klik hier en bezoek de website voor meer informatie
Zoekertjenummer: 120444335 Meld aan Aanbod