Appartement Borssenburgplein in Amsterdam


sinds 31-3-2026 18:51:39


prijs: € 2500
Locatie : Nijmegen  (Gelderland)
Website : Bezoek website

Kenmerken

Beschrijving

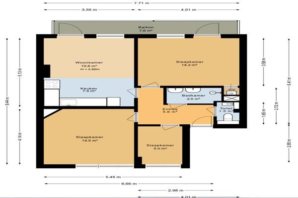
Het appartement is gelegen op de tweede verdieping aan het Borssenburgplein, het beschikt over 3 slaapkamers (3e slaapkamer is klein!). Het appartement is geschikt om te delen met 3 werkende professionals. In de buurt van het appartement vind je een speeltuin, de shops en restaurants aan de Rijnstraat, waaronder Brazuca coffee en de Rijnbar.
Delen: ja met 3 werkende professionals, vsnwege vergunning niet mogelijk met 2
Kenmerken: Kopen in Nijmegen



Klik hier en bezoek de website voor meer informatie
Zoekertjenummer: 120447592 Meld aan Aanbod