Appartement Anton Philipslaan in Eindhoven


sinds 19-3-2026 18:51:57


prijs: € 1250
Locatie : Nijmegen  (Gelderland)
Website : Bezoek website

Kenmerken

Beschrijving

Indeling
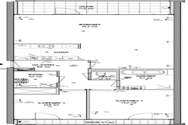
Het appartement is bereikbaar via een centrale hal, vanwaar je toegang hebt tot de slaapkamers, badkamer, aparte toiletruimte en de woonkamer.
De woonkamer heeft een praktische indeling en staat open in verbinding met de keuken. Vanuit de woonkamer is het royale balkon bereikbaar, met uitzicht op de binnentuin.
De luxe open keuken is uitgevoerd in baropstelling en compleet uitgerust. Je vindt hier een keramische kookplaat met afzuigkap, vaatwasser, koel-/vriescombinatie en combimagnetron. Daarnaast is er voldoende kastruimte voor al je spullen.
Aan de voorzijde van het appartement ligt de master bedroom. Deze ruime slaapkamer biedt genoeg plek voor een tweepersoonsbed en een garderobekast.
De tweede slaapkamer kan perfect worden ingericht als studeer-, werk- of hobbykamer.
De badkamer is praktisch ingedeeld en voorzien van een inloopdouche met glazen wand, ligbad en vaste wastafel.
Het toilet is apart van de badkamer, wat extra gemak biedt.
De inpandige berging is bereikbaar vanuit de hal. Hier bevindt zich de WKO-installatie (Warmte Koude Opslag) en de aansluiting voor wasapparatuur.
Het appartement beschikt over twee balkons. Het ruime balkon is bereikbaar vanuit de woonkamer en biedt uitzicht op de binnentuin. Aan de straatzijde ligt een smaller balkon dat grenst aan de slaapkamers.
Kenmerken: Kopen in Nijmegen



Klik hier en bezoek de website voor meer informatie
Zoekertjenummer: 120404699 Meld aan Aanbod